格力中央空调GMV S 商用中央空调机组
一、产品介绍
◆ 产品定义
格力GMV S 商用中央空调机组是格力自主研发的新一代变频空调机组,机组容量为 25kW,主要用于商业场所、工业场合等,机组采用直流变频压缩机,并优化了制冷系统,使性能更佳、能效比更高、运行更可靠,安装调试更方便。
◆ 产品外观图


注: ① 本机组设计执行标准 GB/T 18837-2015、GB 21454-2008。 ② 以上制冷量测试工况:室内干球 / 湿球温度(27/19℃)、室外干球 / 湿球温度(35/24℃);以上制热量测试工况:室内干球 / 湿球温度(20/15℃)、室外干球 / 湿球温度(7/6℃)。 ③ 机组性能参数会因产品的改良有所改变,恕不另行通知。具体参数请以产品铭牌为准。 ④ 噪音是在半消音室的测量值,实际运转时由于环境的改变会稍微高点。

三、产品安装1、产品安装注意事项 1.1 机组安装基础 必须是水泥或钢制结构,应能承受机器的运行重量,并能隔音及震动,且上平面是水平的。机组的 安装基础应预留排水槽。 1.2 机组位置与环境 安装处应充分考虑强风、台风、地震的影响,加固安装;应尽量免受火、易燃物、腐蚀性气体或废 气的影响;应预留通风空间;应采取适当的措施,尽可能减小噪音和振动。 室外机组安装地点选择: ◆ 室外机组必须安装在稳定而坚固的支承面上。 ◆ 室外机组和室内机组应尽可能相互靠近,尽量减少制冷管道的长度及弯角数。 ◆ 避免将室外机安置在窗下或建筑物之间,造成正常的运行噪音传入室内。 ◆ 选择不受阳光直射、雨淋及其他直接辐射热源的地方,若受阳光直晒或雨淋,应安装有效的遮阳板或防雨(雪)棚。 ◆ 进出口气流不受阻碍。 ◆ 选择安装在通气良好的地方,以便机器能吸入和排出足够的空气。 ◆ 不安装在有易燃易爆物品及严重灰尘、盐雾等污染性空气的地方。 空调室外机组进出风口不可安装引风管道。空调机组在室内制热时,冷凝水将从室外机底架上留下, 当室外空气的温度低于 0℃(32 ℉)时,冷凝水会结冰。室外机组设置防雨棚时应注意不得影响机组散热。 1.3 机组管路连接 为避免在连接管上冷凝结露,管必须用保温材料和胶带包扎与空气隔绝。悬空的连接管路应做好支 撑,支撑之间距离不超过 1m。 1.4 电气安装 ◆ 所有电气安装必须由专业人士按国家和当地法律、规章进行。 ◆ 机组必须可靠接地,符合 GB 50169-2016 相关要求。 ◆ 现场接线时请以机身所贴线路图为准。
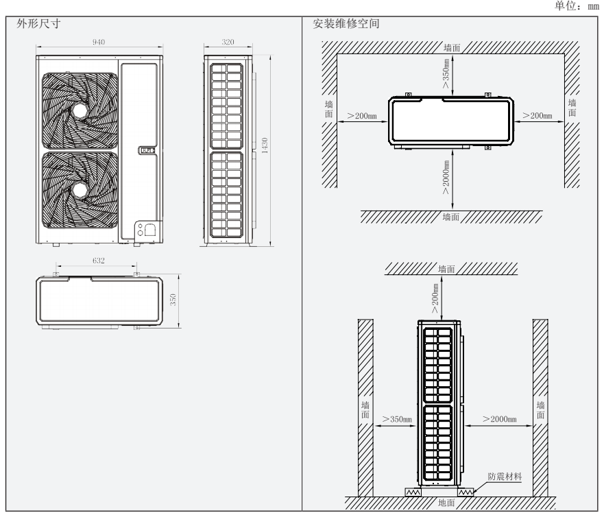
2、产品外形尺寸及安装维修空间

以上是武汉格力中央空调提供的格力GMV S 商用中央空调机组技术参数

咨询热线: